首页
新房
二手房
租房
工商铺
小区
资讯
在线委托
关于我们
租房
地图找房
空中看房
下载正顺好房APP
下载正顺好房APP
好房好生活OKHOME
沁园上舍单身公寓月租1500一中学区房 不占学位、电梯房
城市中心
生活中心
交通便利
老城旺地
收藏
分享
分享房源
扫一扫推荐给朋友
您的位置:
正顺好房网
>
租房
>
详情页
VR看房
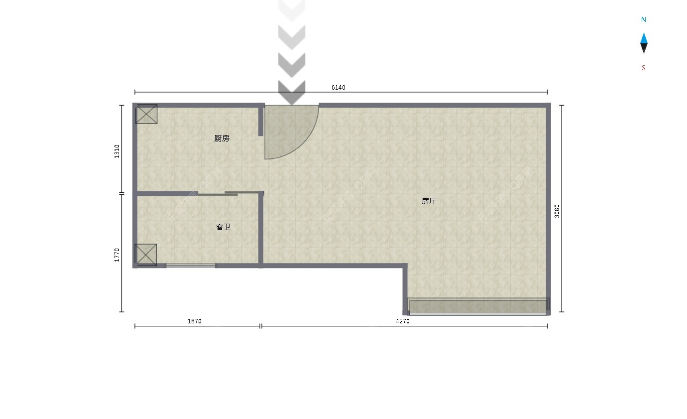
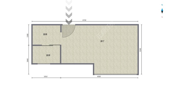
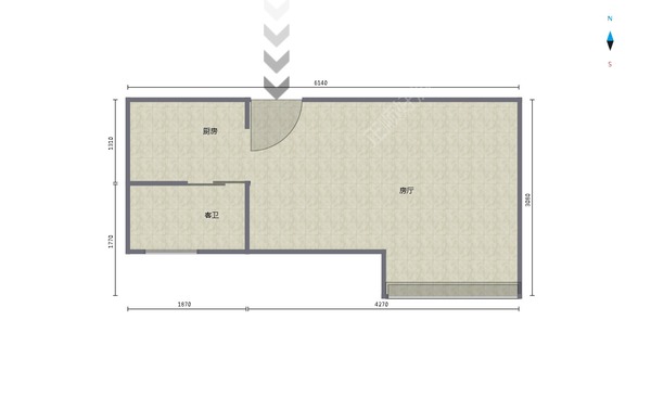
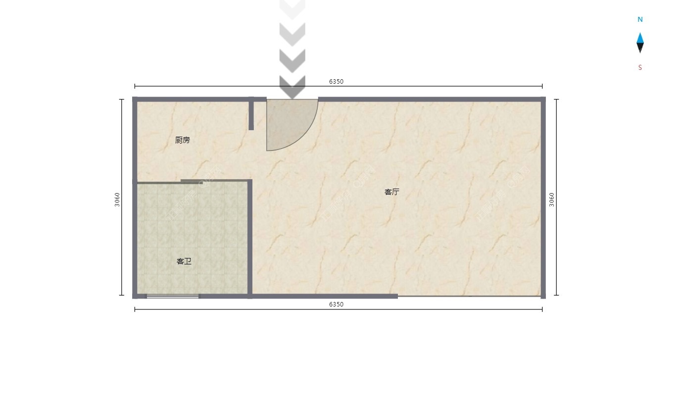
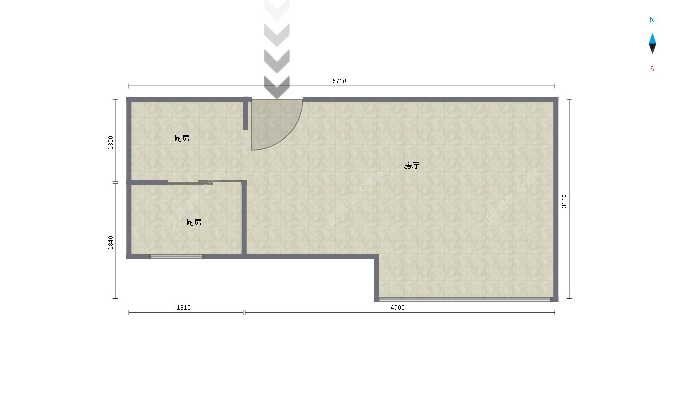
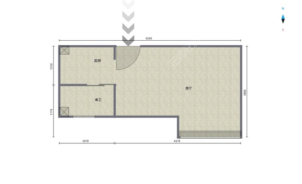
户型图
户型图
户型图
沁园上舍
1500
元/月
整租
1房0厅1卫
中楼层/共19楼
27㎡
精装
东南
2007年建
住宅
所在区域
老香洲
房源编号
936165
更新日期
2026-04-21
OKHOME承诺真实房源,
虚假举报
有奖
加入对比
约车看房
联系客服
基本信息
房源描述
房源点评
房源照片
小区信息
地理位置
加入对比
约车看房
推荐经纪人
基本信息
基本属性
区域
老香洲
片区
凤凰中
小区
沁园上舍
产权
商品房
楼层
中楼层/共19楼
电梯
有
装修
精装
朝向
东南
空间结构
平层
楼龄
2007年
家具
全齐
家电
全齐
地板
磁砖
景观
无景
小学
四小
中学
紫荆中学凤凰校区
* 以上基本属性和交易属性信息仅供参考,购房时以房产证/不动产证信息为准
房源描述
房子独有的特点:
1、一中学区房 、电梯房
2、小户型,好投资
3、老香洲核心地带【周边配套】隔壁是香洲一小,8分钟步行可到达朝阳市场、香洲百货、扬名广场、情侣路、狸野岛、歌剧院。
4、交通方便、公交车站、翠香路站、邮政站、2路、6路、8路、69路、605路
推荐经纪人
陈丽1
凤凰花园一行
高端物业
学区房
粤语
有车
4000781128 转 1765
我的微信
扫一扫添加微信
房源房评
黄永亮
银桦新村一行
您好,本人实地勘察过此房,老香洲 沁园上舍
1:单身公寓 高楼层 采光较好 少有放盘,精装修拎包入住。
2:紫荆中学学区 不占学位,配套成熟交通生活方便。
3:业主诚心出租, 随时可以看房:15992649210 黄永亮
李恰怡
银桦新村分行
本人李恰怡,专业房地产从业人员,实地看过该房,对该房及房产交易等非常熟悉,如需要了解更多详细信息,请来电咨询正顺小李15916274889;谢谢!
1.地理位置:地处老香洲主城区,商业繁华;
2.交通:,公交站,多路公交巴士去到珠海各地,还有机场专线;
3.生活购物:海霞市朝阳市场,扬名广场,尚都百货;
4.休息娱乐:香炉湾沙滩,日月贝歌剧院,名亭公园,景山公园,情侣路,24小时新华书店
5.教育;五小学区,桃园中学,附近二小,二中高中
6.医疗;人民医院,中大五院。
赵月凤
夏美分行
本人赵月凤13824146682亲自勘察该房子
1:单身公寓 高楼层 采光较好 少有放盘
2:近紫荆中学学区 ,扬名广场
3:配套成熟交通生活方便
张松芝
丹田一小分行
1、老香洲核心地带【周边配套】隔壁是香洲一小,8分钟步行可到达朝阳市场、香洲百货、扬名广场、情侣路、狸野岛、歌剧院。
2、交通方便、公交车站、翠香路站、邮政站、2路、6路、8路、69路、605路
看房致电;15220526306
练冠文
金域蓝湾分行
【为什么选择我】 房子我去看过 门店就在小区楼下 看房方便
【房源优势】 房子离学校非常近 基本不用过大马路 靠近扬名广场 香洲百货
【户型优势】 一房一卫带厨房 格局方正 动静干湿分离
【地段优势】 市区核心地段 临近朝阳市场 人民医院 野狸岛 扬名广场和百货公司
【个人总结】 稀缺的户型 欢迎微信或来电137-9898-9650
陈静3
凤凰花园三分行
【户型优势】格局方正,电梯中层,精装公寓
【小区优势】小区建于07年,电梯中层,管理完善,地下和地面都有停车位,比较充足 【学区优势】属于七中和七小学区,业主没有占用学位
【交通优势】出门有巴士站,多条路线公交车线路涵盖整个珠海城区。 【配套优势】为农市场和中大五院,多家知名培训机构和超市,商场,银行等配套完善。 【个人总结】本人亲自看过此房,精装公寓,中高层朝南,视野开阔,空气清新,享受自然氧吧!出行方便,饭后方便去小区 和周边 散步锻炼身体!
【为什么选择我】本人从事地产行业已多年有余,专业销售学区房,熟知入学政策,对周边小区、户型非常熟悉。用心服务,诚信待人!欢迎随时来电! 陈静 139 2339 4616
周先书
丹田一小分行
1.此房是老香洲狮山路正规的单身公寓,带独立厨房和卫生间,家私家电齐全,可以领包入住,适合单身或者情侣居住;
2.周边配套完善,近批发街、香洲百货、人民医院、香洲一小、朝阳市场、扬名广场,生活非常方便,有钥匙,看房方便,看房请联系17841560299.
查看全部
房源图片
查看全部
航拍信息
全屏观看
地理位置
交通
教育
医疗
购物
生活
娱乐
公交站
地铁站
小区信息
查看小区 >
沁园上舍
小区地址
香洲区狮山路33号
建造年代
2007
小区物业
中珠
开 发 商
联浩房产开发有限公司
管 理 费
1.5 元/平米*月
在售 30 套
在租 15 套
查看全部
历史成交
查看更多 >
同类型租房
查看全部
同类型二手房
查看全部
预车看房
预约提交成功我们有专人与您取得联系
预约日期
随时
星期二
21
星期三
22
星期四
23
星期五
24
星期六
25
星期日
26
星期一
27
您的称呼
先生
女士
手机号码
验证码
短信验证码
获取验证码
其他要求
提交预约
推荐经纪人
选择推荐经纪人进行咨询联系
陈丽1
凤凰花园一行
高端物业
学区房
粤语
有车
我的微信
扫一扫添加微信
扫码拨号
18933215680
手机登陆
密码登陆
立即登陆
立即登陆
虚假举报
房源ID(936165)
您的称呼
手机号码
补充描述
验证码:
提 交
【房源】虚假举报属实,奖励 100 元。
【房评】虚假举报属实,奖励 50 元。
在线委托
房源对比
咨询客服QQ
联系客服
474738599
400-168-0808
咨询客服电话
09:30 - 18:30
周一至周六
微信公众号
随时随地关注珠海楼市
微信小程序
正顺好房官方小程序
官方APP
扫描下载正顺好房网APP
专家答疑
在线留言
返回顶部
在线留言
感谢您一直以来对正顺好房网的关注和支持,如果您在使用过程中遇到问题或意见建议请留言反馈给我们,谢谢!
如需我们跟您联系或答复的话,请您留下联系方式。
姓名
电话
E-mail
*
反馈内容
验证码
提交反馈
房源对比
修改
取消
新 房
二手房
租 房