租房
下载正顺好房APP
金湾 中珠上郡 精装三房,113万出售的,随时看房,,,,,,,,,,,,
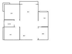
视野开阔
空气清新
格局方正
采光充足
中珠上郡
2100 元/月
整租
3房2厅1卫
高楼层/共11楼
84㎡
精装
2015年建
住宅
所在区域
金湾
房源编号
1720683
更新日期
2025-07-21
OKHOME承诺真实房源,虚假举报有奖
加入对比
约车看房
联系客服
基本信息
基本属性
区域
金湾
片区
红旗
小区
中珠上郡
产权
楼层
高楼层/共11楼
电梯
装修
精装
朝向
空间结构
楼龄
2012年
家具
全齐
家电
全齐
地板
厅磁房木
景观
无景
小学
虹晖小学
中学
红旗中学初中部
* 以上基本属性和交易属性信息仅供参考,购房时以房产证/不动产证信息为准
房源描述

房子独有的特点:

1;【房源介绍】中珠上郡高档大型社区,精装三房,南北通两卫
2;【房源优势】格局方正,使用率高,四期绿化,户型升级版,可做到南北通透。
3;【小区优势】大型高档小区分四期开发,中珠物业,红旗成熟大型小区,邻里相处文明和谐。 
4;【配套优势】中珠上郡位于红旗中心,毗邻双湖北路,发展潜力股,周边配套也是非常成熟的,中珠四期门口就有一个大型的食尚天街正光广场,马路对面就是大型的商业百货,医院,市场等附近都很齐全。
5; 【个人总结】中珠上郡大型小区,不管是轮小区,管理,绿化,都是非常不错的,个人觉得是值得被推荐的。
相关经纪人
王情霞 中珠上郡二行
懂风水
学区房
写字楼
商铺
房源图片
tmpimage.jpgtmpimage
tmpimage.jpgtmpimage
tmpimage.jpgtmpimage
tmpimage.jpgtmpimage
tmpimage.jpgtmpimage
tmpimage.jpgtmpimage
tmpimage.jpgtmpimage
tmpimage.jpgtmpimage
s5EA58843508D4EF5ABBC876F112E8B87.jpg
s0A43505E0F2F4141B388177BA2FF5599.jpg
s63FB88D4D57F429194186B783A15AD47.jpg
sDDE1F4D0CCEB45FD9461428D1BF8D329.jpg
sBB9DD5E83A9246BC8ED2288B5D5F3533.jpg
s5B50AFA12B994B4A88C8315DC85D969F.jpg
s4E836353AE9C4A338B51D673F76EBBB1.jpg
sEFB9A28C486041E3A5CFBBB38E32CC16.jpg
sD60D5246CC214994872F5FE75418C1BC.jpg
户型图
查看全部
航拍信息
地理位置
交通
教育
医疗
购物
生活
娱乐
公交站
地铁站
小区信息
中珠上郡
小区地址
一期金湾区红旗镇双湖北路188号、二三期双湖北路199号、四期虹晖二路188号
建造年代
2012
小区物业
中珠物业
开 发 商
珠海中珠房地产开发有限公司
管 理 费
1.7 元/平米*月
外观
微信图片_20180917130046.jpg
微信图片_20180917130116.jpg
微信图片_20180917130024.jpg
13.jpg
阳台
微信图片_20180917130042.jpg
四期2.jpg
外观
四期4.jpg
微信图片_20180917123006.jpg
微信图片_20180917130059.jpg
一期4.jpg
微信图片_20180917130104.jpg
四期6.jpg
四期55.jpg
一期.jpg
一期3.jpg
19.jpg
22.jpg
微信图片_20180917130036.jpg
15.jpg
小区园林
592168964498293976.jpg
393762535621652598.jpg
425655294114103039.jpg
251665658940273804.jpg
查看全部
历史成交
同类型租房
查看全部
同类型二手房
查看全部