租房
下载正顺好房APP
看海景 少有放盘 朝东南 精装修 东南向,大3房,房子保养很好 诚心出租
海景
无敌海景
空气清新
视野开阔
水岸华都
3800 元/月
整租
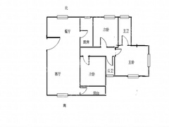
3房2厅2卫
中楼层/共28楼
120㎡
精装
东南
2013年建
住宅
所在区域
南湾
房源编号
1062627
更新日期
2025-08-08
OKHOME承诺真实房源,虚假举报有奖
加入对比
约车看房
联系客服
基本信息
基本属性
区域
南湾
片区
湾仔
小区
水岸华都
产权
商品房
楼层
中楼层/共28楼
电梯
装修
精装
朝向
东南
空间结构
平层
楼龄
2013年
家具
全齐
家电
全齐
地板
磁砖
景观
海景
小学
湾仔小学
中学
湾仔中学
* 以上基本属性和交易属性信息仅供参考,购房时以房产证/不动产证信息为准
房源描述

房子独有的特点:

房子保养得很不错,大三房,稀缺户型。南北通。买即涨,湾仔北站,湾仔口岸就在家门口,十分钟拱北,八分钟横琴
相关经纪人
周金玉 水岸华都一行
别墅
资深经纪人
大专以上学历
高端物业
4000781128 转 1892
刘清秀 水岸华都一行
别墅
资深经纪人
大专以上学历
学区房
4000781128 转 1084
房源房评
本人亲自看过此房,了解此房,电话18825644943
1,户型很好,方正实用,电梯中间楼层,安静不吵,单边位,通风,采光,视野都非常好,一直自住,保养非常不错。
2;周边配套齐全,完善,超市,市场,学校,银行,酒店,邮局等生活所需附近都有,出门就是公交站
3;本人一直跟业主单线保持联系,业主诚心出售,看房都比较方便,随时联系我
本人已从事房地产多年,了解珠海和中山的房价行情,谙熟一手和二手交易流程,热心对待和全程服务好每一个客;选择我,就是选择了专业和高效
房源图片
tmpimage
tmpimage
tmpimage
客厅
阳台
客厅
tmpimage
tmpimage
tmpimage
tmpimage
tmpimage
sEF6753D4CF9D4606BE23CFE07E5F6062.jpg
厨房
sE7D2399CF0D14C2A80EF739A4CED6AE6.jpg
s011C0A6F93FF4ECE8DA6E405B106B678.jpg
tmpimage
s9525DA32538D4E049B75FE2C1D19B356.jpg
tmpimage
tmpimage
tmpimage
tmpimage
tmpimage
客厅
tmpimage
tmpimage
户型图
sFF0B32F9FA9B4442B236CAFA2406ADA7.jpg
客厅
户型图
s9B4F63A9CF6049838B7AF622E9AE4DD6.jpg
户型图
查看全部
航拍信息
地理位置
交通
教育
医疗
购物
生活
娱乐
公交站
地铁站
小区信息
水岸华都
小区地址
南湾南路5001号
建造年代
2013
小区物业
佳兆业物业管理(深圳)有限公司珠海分公司
开 发 商
佳兆业
管 理 费
2.5 元/平米*月
微信图片_20180727104847.jpg
微信图片_20180727104844.jpg
阳台
微信图片_20180727104838.jpg
微信图片_20180727104832.jpg
微信图片_20180727105451.jpg
sA3EED06D7FCA4708BEB8F4B747B10977.jpg
阳台
20180622_154406.jpg
微信图片_20180727105459.jpg
s0A2D75DB922B46D9B6B08949DCA68375.jpg
微信图片_20180727105501.jpg
20180622_154409.jpg
sDC13F6B8F7CA4AD89BE403F5BEB69C2D.jpg
阳台
微信图片_20180727105443.jpg
微信图片_20180727110129.jpg
s8B90747867204112A94449D68B961AB2.jpg
小区图
s917EC18486A74CB0B1D3C64C6FB75041.jpg
微信图片_20180727110116.jpg
客厅
sAA7F6194AB06408188A15DF93F33A8A4.jpg
微信图片_20180727110421.jpg
微信图片_20180727143943.jpg
微信图片_201707041513001.jpg
s55996D51DFDB4BE78E6CA734112350AA.jpg
阳台
阳台
客厅
sB90559A01505427E966CC247B203780E.jpg
查看全部
历史成交
同类型租房
查看全部
同类型二手房
查看全部