租房
下载正顺好房APP
金湾红旗中心位置 正光苑 53平拎包入住 仅售43万.
空气清新
视野开阔
格局方正
清爽简装
正光苑
1300 元/月
分租
2房1厅1卫
中楼层/共11楼
53㎡
精装
西南
2008年建
住宅
所在区域
金湾
房源编号
1041330
更新日期
2025-11-30
OKHOME承诺真实房源,虚假举报有奖
加入对比
约车看房
联系客服
基本信息
基本属性
区域
金湾
片区
红旗
小区
正光苑
产权
商品房
楼层
中楼层/共11楼
电梯
装修
精装
朝向
西南
空间结构
平层
楼龄
2008年
家具
全齐
家电
全齐
地板
磁砖
景观
无景
小学
金湾一小学区
中学
红旗中学
* 以上基本属性和交易属性信息仅供参考,购房时以房产证/不动产证信息为准
房源描述

房子独有的特点:

此房本人亲自去看过,图片是现场拍摄的。
1、房子是学区是金湾一小学区房,学位未占用。
2、此房本人有钥匙,随时可以看房
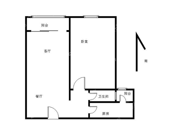
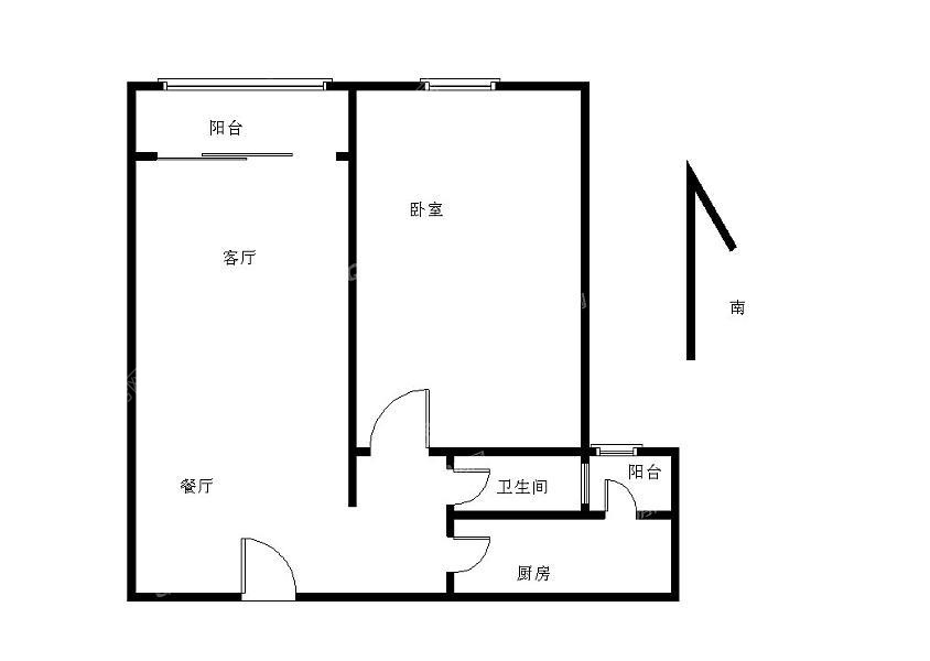
3、房子是一房一厅的格局,很方正,好摆设,出租高回报率
4、周边信息, 幼儿园:红旗幼儿园中小学:珠海市实验中学、红旗中学大学:广东省科学技术学院、吉林大学珠海分校、遵义医学院分院商场:百福汇超市、红旗商业街医院:红旗医院、珠海友好医院邮局:中国邮政银行:中国农业银行、中国工商银行、中国建设银行其他:红旗市场、红旗镇中心广场、红旗003广场小区内部配套:内设绿化园林景观,休闲设施。
推荐经纪人
黄达威 红旗旗景分行
4000781128 转 1555
梁芹伟 保利香槟一行
资深经纪人
大专以上学历
高端物业
普通话
4000781128 转 1741
房源图片
客厅
客厅
主卧
厨房
卫生间
小阳台
阳台
户型图
户型图
查看全部
航拍信息
地理位置
交通
教育
医疗
购物
生活
娱乐
公交站
地铁站
小区信息
正光苑
小区地址
金湾区红旗镇南翔路2
建造年代
2008
小区物业
开 发 商
管 理 费
0.0 元/平米*月
微信图片_20180908101248.jpg
微信图片_20180908101200.jpg
微信图片_20180908101239.jpg
微信图片_20180908101233.jpg
微信图片_20180908101236.jpg
微信图片_20180908101224.jpg
微信图片_20180908101156.jpg
微信图片_20180908101148.jpg
7.jpg
6.jpg
5.jpg
3.jpg
2.jpg
查看全部
历史成交
同类型租房
查看全部
同类型二手房
查看全部