首页
新房
二手房
租房
工商铺
小区
资讯
在线委托
关于我们
租房
地图找房
空中看房
下载正顺好房APP
下载正顺好房APP
好房好生活OKHOME
横琴三塘 四塘村有大量民房出租 110-160平
住家首选
商住两用
配套成熟
城市中心
收藏
分享
分享房源
扫一扫推荐给朋友
您的位置:
正顺好房网
>
租房
>
详情页
提示:您的浏览器不支持视频播放,请升级浏览器》》
视频看房
客厅
客厅
主卧
主卧
次卧
次卧
阳台
厨房
卫生间
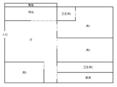
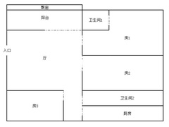
户型图
横琴四塘村
2500
元/月
整租
3房1厅1卫
中楼层/共6楼
110㎡
简装
南
2005年建
住宅
所在区域
横琴
房源编号
1368729
更新日期
2022-12-06
OKHOME承诺真实房源,
虚假举报
有奖
加入对比
约车看房
联系客服
基本信息
房源描述
房源点评
房源照片
小区信息
地理位置
加入对比
约车看房
推荐经纪人
基本信息
基本属性
区域
横琴
片区
码头片区
小区
横琴四塘村
产权
楼层
中楼层/共6楼
电梯
无
装修
简装
朝向
南
空间结构
平层
楼龄
2005年
家具
可配
家电
可配
地板
磁砖
景观
无景
小学
中学
横琴中学
* 以上基本属性和交易属性信息仅供参考,购房时以房产证/不动产证信息为准
房源描述
房子独有的特点:
整层或者是整栋出租都可以(只限2-6楼,1楼店面除外)
可办公,可做员工宿舍。
可短租,3个月起租。
推荐经纪人
黎剑荣
横琴财富中心店
粤语
有车
资深经纪人
高端物业
4000781128 转 1735
我的微信
扫一扫添加微信
房源图片
查看全部
航拍信息
全屏观看
地理位置
交通
教育
医疗
购物
生活
娱乐
公交站
地铁站
小区信息
查看更多 >
横琴四塘村
小区地址
横琴新区横琴中心大道
建造年代
2005
小区物业
大横琴
开 发 商
大横琴
管 理 费
0.0 元/平米*月
在售 0 套
在租 0 套
查看全部
历史成交
同类型租房
查看全部
同类型二手房
查看全部
预车看房
预约提交成功我们有专人与您取得联系
预约日期
随时
星期二
23
星期三
24
星期四
25
星期五
26
星期六
27
星期日
28
星期一
29
您的称呼
先生
女士
手机号码
验证码
短信验证码
获取验证码
其他要求
提交预约
推荐经纪人
选择推荐经纪人进行咨询联系
黎剑荣
横琴财富中心店
粤语
有车
资深经纪人
高端物业
我的微信
扫一扫添加微信
扫码拨号
13825650920
手机登陆
密码登陆
立即登陆
立即登陆
虚假举报
房源ID(1368729)
您的称呼
手机号码
补充描述
验证码:
提 交
【房源】虚假举报属实,奖励 100 元。
【房评】虚假举报属实,奖励 50 元。
在线委托
房源对比
咨询客服QQ
联系客服
474738599
400-168-0808
咨询客服电话
09:30 - 18:30
周一至周六
微信公众号
随时随地关注珠海楼市
微信小程序
正顺好房官方小程序
官方APP
扫描下载正顺好房网APP
专家答疑
在线留言
返回顶部
在线留言
感谢您一直以来对正顺好房网的关注和支持,如果您在使用过程中遇到问题或意见建议请留言反馈给我们,谢谢!
如需我们跟您联系或答复的话,请您留下联系方式。
姓名
电话
E-mail
*
反馈内容
验证码
提交反馈
房源对比
修改
取消
新 房
二手房
租 房