首页
新房
二手房
租房
工商铺
小区
资讯
在线委托
关于我们
新房
地图找房
空中看房
下载正顺好房APP
下载正顺好房APP
好房好生活OKHOME
华发云玺
在售
住宅
分享
分享房源
扫一扫推荐给朋友
您的位置:
正顺好房网
>
吉大
>
华发云玺
楼盘首页
基本信息
楼盘动态
户型全景VR
楼盘相册
户型图
全部户型(4)
3居(2)
4居(2)
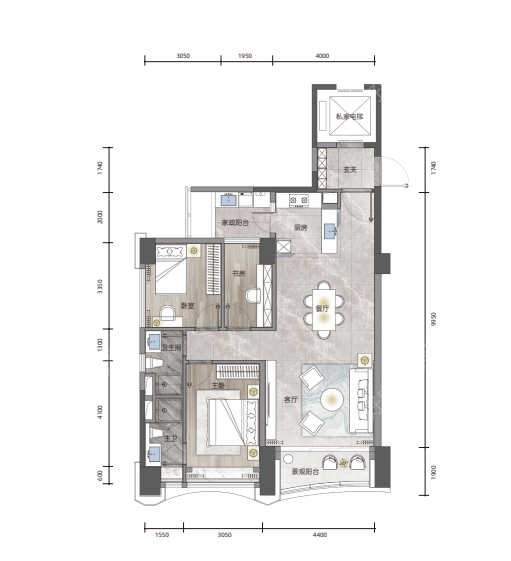
九洲公馆110平
3室2厅2卫 约
110㎡
九洲公馆123平
3室2厅2卫 约
123㎡
九洲公馆138平
4室2厅2卫 约
138㎡
九洲公馆143平
4室2厅2卫 约
143㎡
九洲公馆110平
居 室 数:
3室2厅2卫
建筑面积:
110㎡
参考单价:
54545元/㎡
参考总价:
600万
装修情况:
精装
方位朝向:
南
户型描述:
餐厨一体 | 休闲聚会,享受慢调烹饪时光 双卫设计 | 主客分离 瞰景阳台 | 壹揽澎湃湾景
九洲公馆123平
居 室 数:
3室2厅2卫
建筑面积:
123㎡
参考单价:
50406元/㎡
参考总价:
620万
装修情况:
精装
方位朝向:
南
户型描述:
入户玄关 南向观景阳台,静观海湾美景 宽境三居 | 朗阔空间 南向主卧,通风采光俱佳
九洲公馆138平
居 室 数:
4室2厅2卫
建筑面积:
138㎡
参考单价:
52898元/㎡
参考总价:
730万
装修情况:
精装
方位朝向:
北
户型描述:
双面阳台 | 极目山海盛景 宽境尺度 | 餐客厨一字相连 朗阔客厅 | 大尺度客厅 山景主卧
九洲公馆143平
居 室 数:
4室2厅2卫
建筑面积:
143㎡
参考单价:
55244元/㎡
参考总价:
790万
装修情况:
精装
方位朝向:
南
户型描述:
独立电梯入户,朗阔客厅 南向开间 | 三开间朝南 主卧套房 | 南向主卧,独立卫浴/衣帽间
在线委托
房源对比
咨询客服QQ
联系客服
474738599
400-168-0808
咨询客服电话
09:30 - 18:30
周一至周六
微信公众号
随时随地关注珠海楼市
微信小程序
正顺好房官方小程序
官方APP
扫描下载正顺好房网APP
专家答疑
在线留言
返回顶部
在线留言
感谢您一直以来对正顺好房网的关注和支持,如果您在使用过程中遇到问题或意见建议请留言反馈给我们,谢谢!
如需我们跟您联系或答复的话,请您留下联系方式。
姓名
电话
E-mail
*
反馈内容
验证码
提交反馈
房源对比
修改
取消
新 房
二手房
租 房