二手房
下载正顺好房APP
拱北夏湾 中珠幸福时光 电梯 1房 116万
配套成熟
城市中心
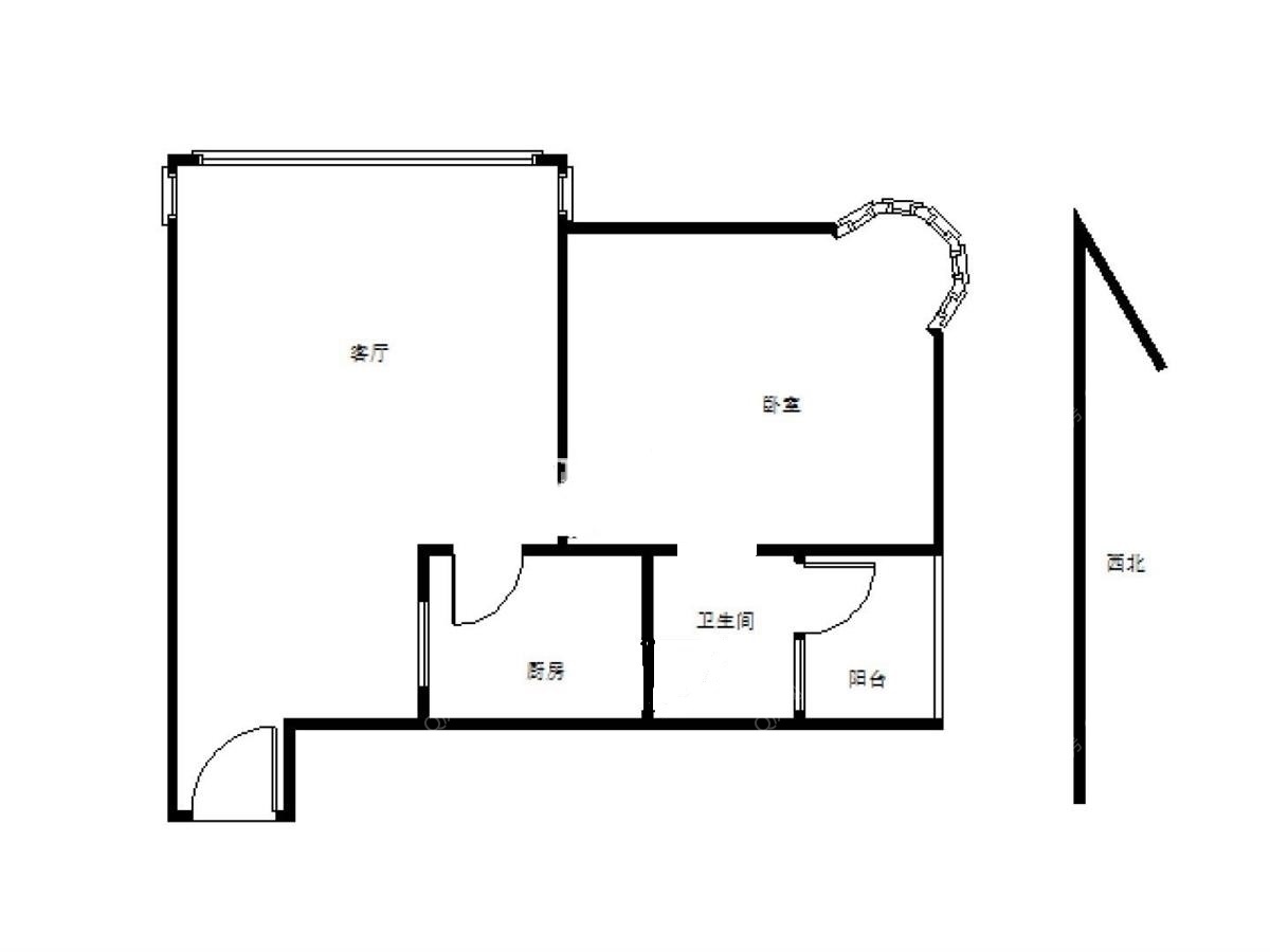
格局方正
采光充足
中珠幸福时光
116.0
24535元/㎡
可议价
首付17万 贷款99万 月供4427元,30年(仅供参考)
1房1厅1卫
高楼层/共17楼
47㎡
精装
2004年建
住宅
所在区域
夏湾
房源编号
959857
更新日期
2026-02-25
OKHOME承诺真实房源,虚假举报有奖
加入对比
约车看房
联系客服
基本信息
基本属性
区域
夏湾
片区
港昌北
小区
中珠幸福时光
产权
商品房
楼层
高楼层/共17楼
电梯
状态
已使用
税费
满2年
装修
精装
朝向
空间结构
平层
楼龄
2004年
家具
全齐
家电
全齐
地板
磁砖
景观
楼景
小学
十六小
中学
第十一中学
税费参考
承担卖房税费
约 11600 元
承担买房税费
买房税费主要包括:契税:(1%、1.5%、2%、3%)首套或二套<140㎡按1%,首套>140㎡按1.5%,二套>140㎡按2%,第三套起及非住宅按3%
楼层保密说明
按照总层高/3,分为低楼层、中楼层、高楼层,共三个段
* 以上基本属性和交易属性信息仅供参考,购房时以房产证/不动产证信息为准
房源卖点
卖点一
1.近拱北 距离仅仅6分钟车程,公交站就在楼下,出门就能上车
卖点二
2.周边配套非常齐全:超市,酒店,便利店,学校,农贸市场,医院,社区公园。。。
卖点三
3.小区环境干净舒适,中珠物业管理好
卖点四
4.客厅大飘窗,卧室圆弧型景观窗,前无遮挡,通风采光一流,看河景,看轻轨站,风景无限美
推荐经纪人
苏春丽 北欧森林一行
中高档公寓
高端物业
学区房
普通话
4000781128 转 1736
赵海丰 双生花二分行
学区房
粤语
资深经纪人
商铺
4000781128 转 1743
房源图片
客厅
客厅
客厅
主卧
主卧
厨房
卫生间
户型图
房贷计算器
地理位置
交通
教育
医疗
购物
生活
娱乐
公交站
地铁站
小区信息
中珠幸福时光
小区地址
香洲区夏湾港昌路388号
建造年代
2004
小区物业
中珠物业管理有限公司
开 发 商
管 理 费
1.5 元/平米*月
sDA8B55F2741840B4BF3C05FD7E744FCD.jpg
sDA8FEB8400D94031AA4249731717E34C.jpg
100413991.jpg
454667673.jpg
sC2B9D7838DE840308C8493386A8534DB.jpg
s09BB434CC37549AF98C6365BC3F86E72.jpg
1480591935.jpg
645664956.jpg
sDB5D83408548457FB6ED687DD734F684.jpg
s17ED39EB57E94E72A526A763FE3B0681.jpg
661821892.jpg
768825542.jpg
s0C894B3C827942ECB530C156A195830C.jpg
s96F452E03C1D4E6AA72FD398A4DA4C0C.jpg
s8CCCA75C8E5A4701982F933D2D93FB61.jpg
1806893787.jpg
sB2C978F3231741C4B776439D7E450C29.jpg
s127F43E541B342F1A162DF4FFF9A45C5.jpg
sA33506D0BDDD41AAAADB8D1BAA441CFE.jpg
s80FF0F6F74834860914AA3F40D62979C.jpg
s7E6DC984F64443D2B93323CD54767180.jpg
s24DC6BA4FAE845D89A0F0717A511F656.jpg
s2F19B3ABB54949CBACCAA244814AACD2.jpg
sED2DDF31F2404D15A89371EE2FD0E804.jpg
sE99BBC700F184D779703D9FDFD383858.jpg
sFE6D7C3DB4CD49E491BAA3677A290CDC.jpg
sFDD3BD79B6514CA88DF68F994423244D.jpg
sD29099747E3D4FD1B4D0AEB1E85871A6.jpg
sE3F0E98DBC2246008B5441045982B778.jpg
s0BB8854B296343519611F9B9FBB04C34.jpg
sA34D96ACB92E49C68531D51345EDFB91.jpg
s7CBE1A8201534A14B1B096271C886A5A.jpg
s4E45C02DA09E4C13AE47BB0EEC65DE2E.jpg
sF59C341CD7544A35B953ABED6B472C60.jpg
sCCF9B5122D8B42E49353F3EBDEC3F33A.jpg
s2A14A37487264EC9BBA3647666A90FFF.jpg
sE46F9354C20D458F9EEF88A4B03DCAE2.jpg
s715F35F4D1634F8EBAEB499F823BFC0A.jpg
s62DC14F1ACD24BC58FAF16528C882188.jpg
s3A9DD19DC2B4455A997524CCC58D3B15.jpg
s0F3EB01400A04E0BA8E59D4EF1DE5DE6.jpg
sD45D0135E4484B60B084129A60F7AC6F.jpg
sF9205B3B48844D4981FD7CFA485136D6.jpg
s93C51C404DA3498A95316FBFB75956D6.jpg
s20E6BA3D4052400186A5E1F88ECA1047.jpg
sB8CE1CB110C84869998615D55E265A77.jpg
客厅
查看全部
历史成交
同类型二手房
查看全部
同类型租房
查看全部