二手房
下载正顺好房APP
兰埔花园大四房 诚意出售 随时可以看房的
园林景
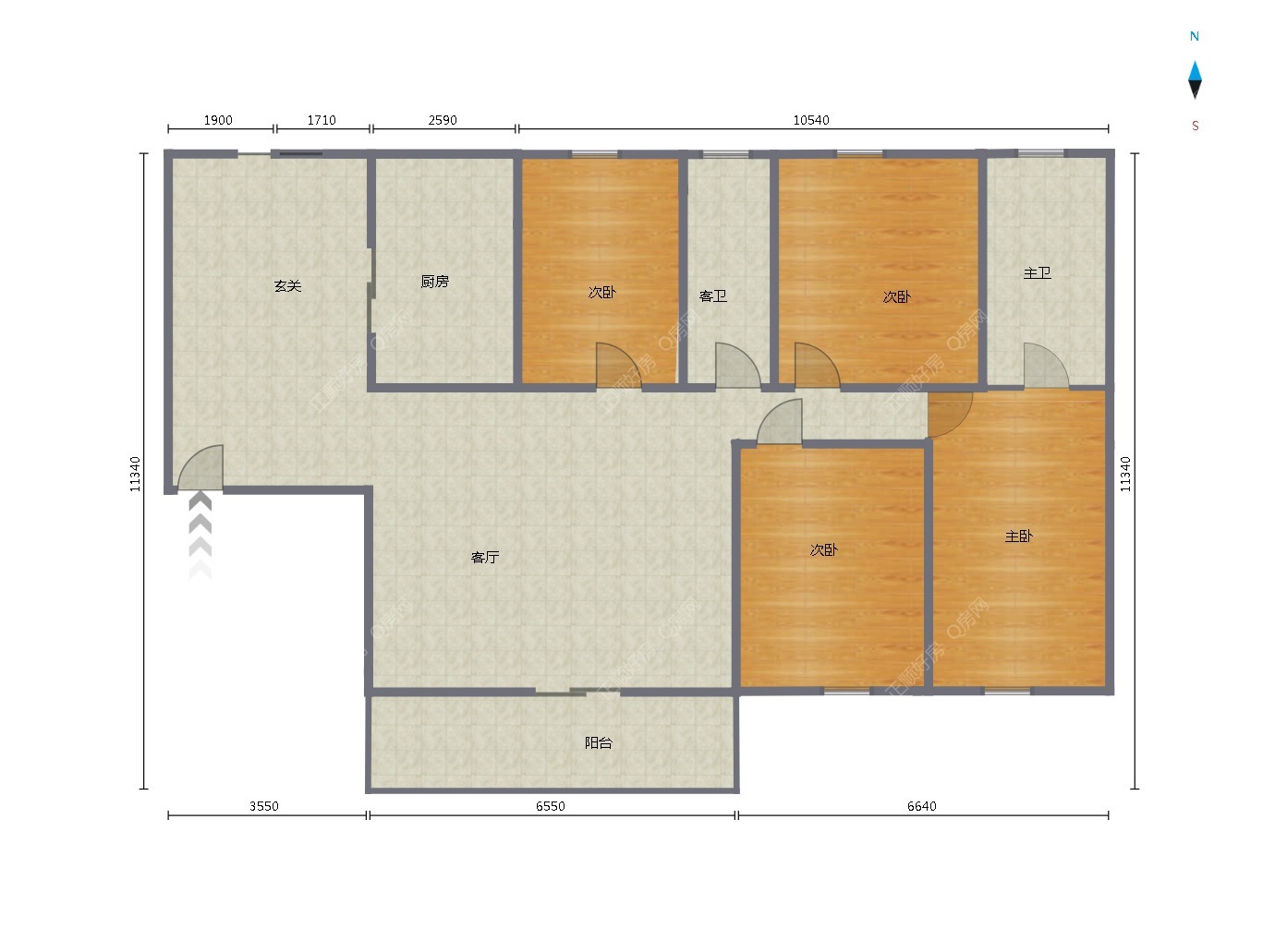
全南户型
拎包入住
生活中心
兰埔花园
338.0
22898元/㎡
首付51万 贷款287万 月供12900元,30年(仅供参考)
4房2厅2卫
低楼层/共19楼
148㎡
精装
南北
2004年建
住宅
所在区域
兰埔
房源编号
1810212
更新日期
2026-04-28
OKHOME承诺真实房源,虚假举报有奖
加入对比
约车看房
联系客服
基本信息
基本属性
区域
兰埔
片区
小区
兰埔花园
产权
商品房
楼层
低楼层/共19楼
电梯
状态
已使用
税费
满五唯一
装修
精装
朝向
南北
空间结构
平层
楼龄
2004年
家具
少量
家电
少量
地板
磁砖
景观
小学
金钟小学
中学
第十六中学
税费参考
承担卖房税费
约 33800 元
承担买房税费
买房税费主要包括:契税:(1%、1.5%、2%、3%)首套或二套<140㎡按1%,首套>140㎡按1.5%,二套>140㎡按2%,第三套起及非住宅按3%
楼层保密说明
按照总层高/3,分为低楼层、中楼层、高楼层,共三个段
* 以上基本属性和交易属性信息仅供参考,购房时以房产证/不动产证信息为准
房源卖点
卖点一
交通:小区南门就有兰埔富华里巴士站,可以去斗门,金湾,高栏港,红旗,三灶,香洲,拱北,唐家,坦洲等,多路公交路线。
卖点二
商业:小区自带九州商贸,有天虹超市,古春堂,健身等。小区南门有得一超市,兰埔菜市场,对面是富华里商业,所以说周边配套成熟,生活便利。
推荐经纪人
唐小妹 棕榈假日一分行
4000781128 转 1243
房源图片
户型图
c2926992637e3362d06cf39ab124518
5f7ce2cda020595d41d43681da84a0f
9a30f088d367c4c27546894dd83330c
9fc771de2fdca277459931c6db0e60a
11b24b95b0d37669f12fd1f9b42e625
633e69844bd25260a8f51df8c2f3dc8
849bf8be243b276f8a308b3402e1047
04018c4af9fab95a4597850e9fada2e
183135112bb7c003d3d6941268517a1
7796948702727ab18629b9b0f0897dd
ad5d84788fae61b99bbb74a710cfbbc
ad08e26f43ee9149d5e0ca77445f2b9
查看全部
房贷计算器
航拍信息
地理位置
交通
教育
医疗
购物
生活
娱乐
公交站
地铁站
小区信息
兰埔花园
小区地址
九洲大道西2108号
建造年代
2004
小区物业
兰埔物业
开 发 商
兰埔股份合作有限公司
管 理 费
0.6 元/平米*月
s9A8B7647110040A594FEE3035F5858AD.jpg
sCDA7AB1A4E4A44ACA1CFEAA959E959E0.jpg
s43953ABF36CA439F8B1FD5665F22C94C.jpg
sD1A79BE031F649B58C145269036309BF.jpg
s9BB796724ED84BC88D3F63BA01A1AAB5.jpg
s76B83FA7C4C44951AB3C7A5D48A59113.jpg
s29878FAB96B54279AC33FAEE782A8C91.jpg
s52E275E84BCE4A31B15D88A2D7266BC1.jpg
客厅
sEAFEA202A059442E8747A737E6D5B169.jpg
s9F86FC31909D461897DD904931BC6283.jpg
sE3EF72C8DE6F43A393AA5777C1542E5E.jpg
s381BA68A67454A77B2BF3FBC81708A67.jpg
s109BA08176164B92979307D0F3C6B25B.jpg
s1BCFC45D0CBE46289B6EA71B977B0F87.jpg
s8FF85E83444D41958DA61B0B823ACE6B.jpg
s33CBE6400D924F5EA04404834E788788.jpg
sAB34BA7ABF384C6DB22371072DFBCBED.jpg
s93707A6F5AB74F56A030161165AF477C.jpg
sA8CADD613EBB4BA19FEDFED52D3805A4.jpg
s9DA00E07704A4A069956DD66C556AB54.jpg
s898BB1F68F754ED19E0E69F27C0A9E7D.jpg
s831B5B545F8C4DA8B5C7D998CCB43457.jpg
s895D218838494F75890926FE1B39F13F.jpg
s07AF451AB14C41F58BB027C555D124D3.jpg
sE37D5E57204E424CA29F8E055E54204A.jpg
2_meitu_2.jpg
s6D98BAFF8DAA4048A3F7D798FDC7ABB2.jpg
sE6BDF8A1294E48BB97F7FC44849114C1.jpg
s5111D7AF61CD4ED49E8B3655D45268EB.jpg
查看全部
历史成交
同类型二手房
查看全部
同类型租房
查看全部