二手房
下载正顺好房APP
金湾红旗刚需小三房 (中珠上郡)毛坯交楼标准
园林景
格局方正
小康之家
老城旺地
中珠上郡
58.0
6892元/㎡
首付9万 贷款49万 月供2214元,30年(仅供参考)
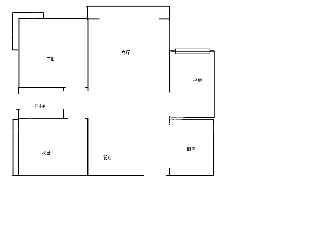
3房2厅1卫
低楼层/共18楼
84㎡
毛坯
2015年建
住宅
所在区域
金湾
房源编号
1677944
更新日期
2025-12-14
OKHOME承诺真实房源,虚假举报有奖
加入对比
约车看房
联系客服
基本信息
基本属性
区域
金湾
片区
红旗
小区
中珠上郡 二三期
产权
楼层
低楼层/共18楼
电梯
状态
全新未住
税费
满五唯一
装修
毛坯
朝向
空间结构
平层
楼龄
2015年
家具
家电
地板
水泥地
景观
无景
小学
虹晖小学
中学
红旗中学初中部
税费参考
承担卖房税费
约 5800 元
承担买房税费
买房税费主要包括:契税:(1%、1.5%、2%、3%)首套或二套<140㎡按1%,首套>140㎡按1.5%,二套>140㎡按2%,第三套起及非住宅按3%
楼层保密说明
按照总层高/3,分为低楼层、中楼层、高楼层,共三个段
* 以上基本属性和交易属性信息仅供参考,购房时以房产证/不动产证信息为准
房源卖点
卖点一
此房是中珠上郡最好的一个户型之一,刚需小三房,唯一不足的是朝向是北向的,但这不影响居住舒适度。因为旁边有别的楼栋,所以不怕西晒。
推荐经纪人
马兴天 中珠上郡分行
高端物业
资深经纪人
别墅
商铺
4000781128 转 1920
李英1 Q金海华府分店
4000781128 转 1275
房源房评
本人蔡明海,在正顺好房上班7年,精耕红旗,航空新城,湖心路一手二手房源,看房车接车送:13532288836,
此房经我勘察有以下卖点:
 1、【房源介绍】此房是金湾红旗中珠上郡高端大型生活社区,小区环境好,房子价格美丽,有考虑在这边买房子的,把握机会! 
2、【户型优势】83平,朝东南向,毛坯房,视野无遮挡。
 3、【税收优势】满五唯一无税 
4、【小区优势】小区统一管理,住户素质高,安全性高。走在小区里,犹如在逛公园,非常舒适的。
小曾!电话:13411426068在正顺地产,精耕红旗,航空新城,湖心路一手二手房源,看房车接车送:此房经我勘察有以下优点:

1、【房源介绍】此房位于金湾,房子价格美丽,有考虑在这边买房子的,把握机会!
2、【户型优势】户型实用
给你更多的自由创意装修空间。
3、【小区优势】统一管理,住户素质高,小区绿化好,小区大,安全性高。走在小区里,犹如在逛公园,非常舒适的。
本人陈聪文,在正顺好房上班,精耕中珠上郡,航空新城,红旗,湖心路一手二手房源,看房车接车送:13544923577,此房经我勘察有以下卖点:1、【房源介绍】此房是金湾红旗高端大型低密度住宅生活社区,小区环境好,中珠一级物业管理,房子价格美丽,有考虑在这边买房子的,把握机会! 2、【户型优势】84平3房,东南朝向 3、【税收优势】房子满两年。 4、【小区优势】统一管理,住户素质高,安全性高。走在小区里,犹如在逛公园,非常舒适的
房源图片
s01CA9080ED3F400FA19506E8838B5E53.jpg
s4253C64F583A4E85BA752E032EB2AD6E.jpg
s9A62FEA7BDC44382B3672FB2AEB80CA1.jpg
sAEDF67AF7D314E0CA8F61F97C200B8A9.jpg
s96881739E6DC46F3A592488DA4C3C37E.jpg
s69E22498D3384D479EDA0BFCC08038B6.jpg
sEB9C13E612254E51801C010F70FEF6AD.jpg
s3C72A432016B47D999E87D7400139D68.jpg
户型图
查看全部
房贷计算器
航拍信息
地理位置
交通
教育
医疗
购物
生活
娱乐
公交站
地铁站
小区信息
中珠上郡 二三期
小区地址
一期金湾区红旗镇双湖北路188号、二三期双湖北路199号、四期虹晖二路188号
建造年代
2015
小区物业
中珠物业
开 发 商
珠海中珠房地产开发有限公司
管 理 费
1.7 元/平米*月
外观
微信图片_20180917130046.jpg
微信图片_20180917130116.jpg
微信图片_20180917130024.jpg
13.jpg
阳台
微信图片_20180917130042.jpg
四期2.jpg
外观
四期4.jpg
微信图片_20180917123006.jpg
微信图片_20180917130059.jpg
一期4.jpg
微信图片_20180917130104.jpg
四期6.jpg
四期55.jpg
一期.jpg
一期3.jpg
19.jpg
22.jpg
微信图片_20180917130036.jpg
15.jpg
小区园林
592168964498293976.jpg
393762535621652598.jpg
425655294114103039.jpg
251665658940273804.jpg
查看全部
历史成交
同类型二手房
查看全部
同类型租房
查看全部