首页
新房
二手房
租房
工商铺
小区
资讯
在线委托
关于我们
二手房
地图找房
空中看房
下载正顺好房APP
下载正顺好房APP
好房好生活OKHOME
横琴口岸 首次空房出租 荔枝湾
采光充足
格局方正
全新未住
收藏
分享
分享房源
扫一扫推荐给朋友
您的位置:
正顺好房网
>
二手房
>
详情页
提示:您的浏览器不支持视频播放,请升级浏览器》》
VR看房
视频看房
厨房
主卧
客厅
次卧
次卧
次卧
次卧
主卧
主卧
客厅
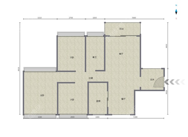
户型图
荔枝湾
268.0
万
29735元/㎡
首付40万 贷款228万 月供10228元,30年(仅供参考)
3房2厅1卫
高楼层/共33楼
90㎡
精装
南
2018年建
住宅
所在区域
横琴
房源编号
1643839
更新日期
2025-12-03
OKHOME承诺真实房源,
虚假举报
有奖
加入对比
约车看房
联系客服
基本信息
房源描述
房源点评
房源照片
小区信息
地理位置
加入对比
约车看房
推荐经纪人
基本信息
基本属性
区域
横琴
片区
口岸片区
小区
荔枝湾 北区
产权
楼层
高楼层/共33楼
电梯
有
状态
已使用
税费
装修
精装
朝向
南
空间结构
平层
楼龄
2018年
家具
无
家电
少量
地板
磁砖
景观
无景
小学
横琴小学
中学
横琴一中
税费参考
承担卖房税费
约 26800 元
承担买房税费
买房税费主要包括:契税:(1%、1.5%、2%、3%)首套或二套<140㎡按1%,首套>140㎡按1.5%,二套>140㎡按2%,第三套起及非住宅按3%
楼层保密说明
按照总层高/3,分为低楼层、中楼层、高楼层,共三个段
* 以上基本属性和交易属性信息仅供参考,购房时以房产证/不动产证信息为准
房源卖点
卖点一
横琴 高大上,K2荔枝湾,居家首选
卖点二
小区管理好,人车分流,安全舒适
卖点三
电梯精装三房,主卧南向采光好,带家私家电,首次出租!
卖点四
小区环境优雅,小区是横琴唯一引入天沐河活水的小区,每户都可以看到河景和山景;
卖点五
第.一太.平戴维斯物业管理
卖点六
开车很快就能到横琴中心小学和中学;横琴唯一小区自建有2所‘伊顿公学’;
卖点七
出小区步行20米就是华发的商业街,500米处建有大型综合购物广场,旁边是政府规划的湿地公园,配套齐全,有无边际泳池和豪华会所,小区人车分流;
卖点八
地下通道直通横琴关口,广珠城轨联通横琴,直达金湾机场;
卖点九
医院:麻省理工医学院亚洲分院,广东医科大学横琴医院。
推荐经纪人
张开秀
华发五期分行
高端物业
学区房
资深经纪人
普通话
4000781128 转 1863
我的微信
扫一扫添加微信
刘水兰
华发五期分行
4000781128 转 1406
我的微信
扫一扫添加微信
刘冰懿
菁华名苑分店
大专以上学历
资深经纪人
别墅
普通话
4000781128 转 1242
我的微信
扫一扫添加微信
姚闽
拱南琴
中高档公寓
高端物业
别墅
商铺
4000781128 转 1064
我的微信
扫一扫添加微信
黄小娜1
华发广场一行
4000781128 转 1542
我的微信
扫一扫添加微信
房源图片
查看全部
房贷计算器
房屋总价
268.00
贷款成数
2成
3成
4成
5成
6成
7成
8成
8.5成
贷款类别
商业贷款
公积金贷款
组合贷款
贷款年限
30年(360期)
29年(348期)
28年(336期)
27年(324期)
26年(312期)
25年(300期)
24年(288期)
23年(276期)
22年(264期)
21年(252期)
20年(240期)
19年(228期)
18年(216期)
17年(204期)
16年(192期)
15年(180期)
14年(168期)
13年(156期)
12年(144期)
11年(132期)
10年(120期)
9年(108期)
8年(96期)
7年(84期)
6年(72期)
5年(60期)
4年(48期)
3年(36期)
2年(24期)
1年(12期)
商贷贷款额
商贷利率
首套3.00
二套3.00
公积金贷款额
公积金利率
参考利率2.85
参考利率3.325
立即计算
等额本息还款
等额本金还款
首付
万
贷款总额
万
月供
元
总利息
万
本息总额
万
首付
万
贷款总额
万
月供
元
每月递减
元
总利息
万
本息总额
万
注:本次计算仅作为购房参考,结合实际情况了解更精确首付、贷款方案,建议咨询专业顾问
首付和贷款情况咨询
航拍信息
全屏观看
地理位置
交通
教育
医疗
购物
生活
娱乐
公交站
地铁站
小区信息
查看更多 >
荔枝湾 北区
小区地址
南区:横琴琴政路739号、北区:横琴琴政路798号
建造年代
2018
小区物业
东方乔戈里物业有限公司
开 发 商
北京k2地产
管 理 费
3.0 元/平米*月
在售 171 套
在租 134 套
查看全部
历史成交
查看更多 >
同类型二手房
查看全部
同类型租房
查看全部
预车看房
预约提交成功我们有专人与您取得联系
预约日期
随时
星期三
3
星期四
4
星期五
5
星期六
6
星期日
7
星期一
8
星期二
9
您的称呼
先生
女士
手机号码
输入识别码
短信验证码
获取验证码
其他要求
提交预约
推荐经纪人
选择推荐经纪人进行咨询联系
张开秀
华发五期分行
高端物业
学区房
资深经纪人
普通话
我的微信
扫一扫添加微信
扫码拨号
13411560875
刘水兰
华发五期分行
我的微信
扫一扫添加微信
扫码拨号
13928089071
刘冰懿
菁华名苑分店
大专以上学历
资深经纪人
别墅
普通话
我的微信
扫一扫添加微信
扫码拨号
15992605885
姚闽
拱南琴
中高档公寓
高端物业
别墅
商铺
我的微信
扫一扫添加微信
扫码拨号
13825651672
黄小娜1
华发广场一行
我的微信
扫一扫添加微信
扫码拨号
13823077354
手机登陆
密码登陆
立即登陆
立即登陆
虚假举报
房源ID(1643839)
您的称呼
手机号码
补充描述
验证码:
提 交
【房源】虚假举报属实,奖励 100 元。
【房评】虚假举报属实,奖励 50 元。
在线委托
房源对比
咨询客服QQ
联系客服
474738599
400-168-0808
咨询客服电话
09:30 - 18:30
周一至周六
微信公众号
随时随地关注珠海楼市
微信小程序
正顺好房官方小程序
官方APP
扫描下载正顺好房网APP
专家答疑
在线留言
返回顶部
在线留言
感谢您一直以来对正顺好房网的关注和支持,如果您在使用过程中遇到问题或意见建议请留言反馈给我们,谢谢!
如需我们跟您联系或答复的话,请您留下联系方式。
姓名
电话
E-mail
*
反馈内容
验证码
提交反馈
房源对比
修改
取消
新 房
二手房
租 房