首页
新房
二手房
租房
小区
资讯
在线委托
关于我们
二手房
地图找房
空中看房
下载正顺好房APP
下载正顺好房APP
好房好生活OKHOME
华发峰尚 毛坯两房 户型方正实用 业主急售
投资首选
稳定回报
物有所值
商住两用
收藏
分享
分享房源
扫一扫推荐给朋友
您的位置:
正顺好房网
>
二手房
>
详情页
提示:您的浏览器不支持视频播放,请升级浏览器》》
视频看房
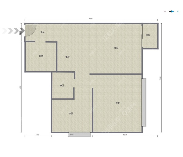
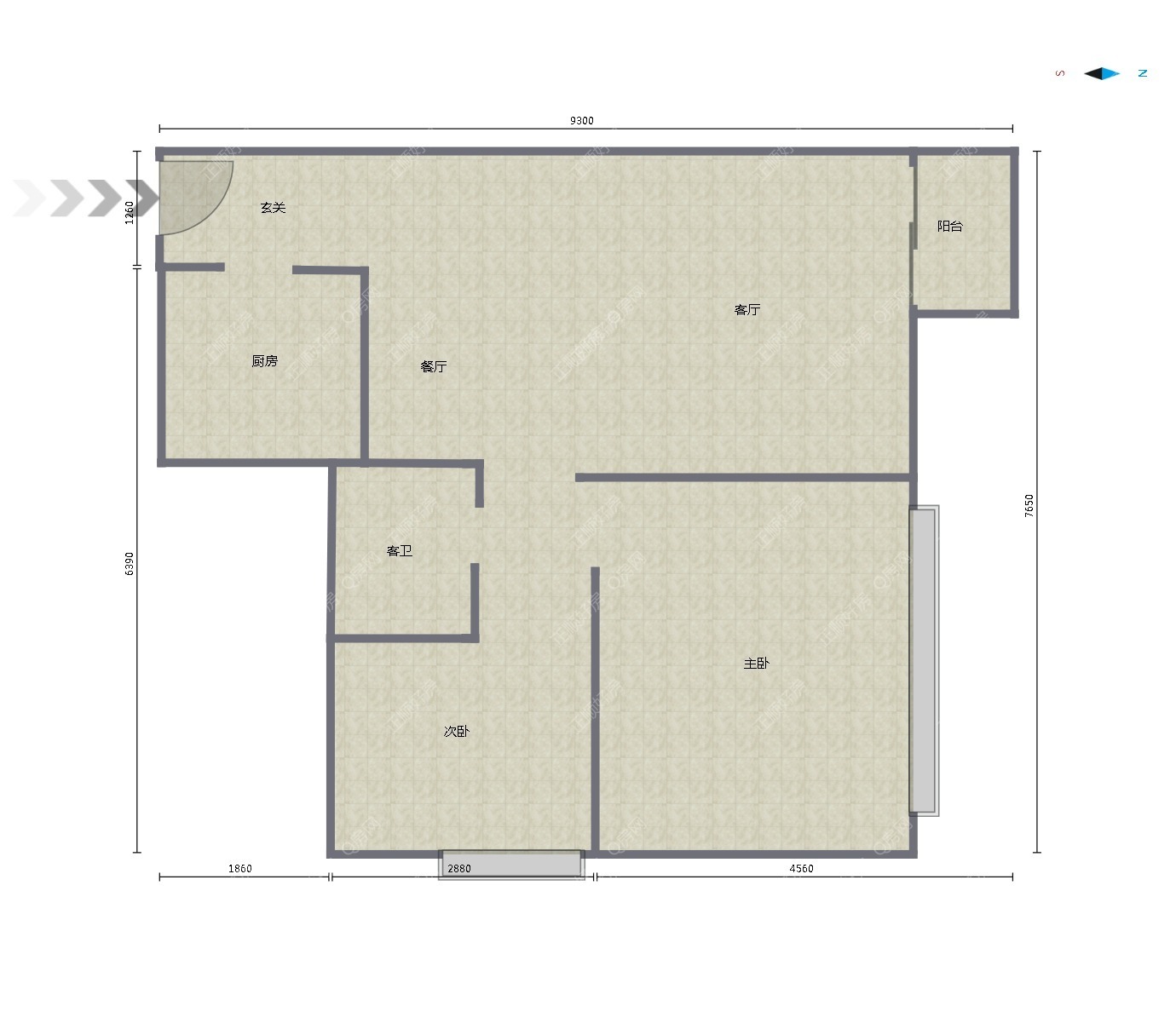
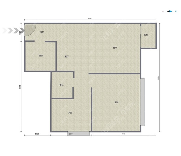
户型图
户型图
华发峰尚
55.0
万
8405元/㎡
首付11万 贷款44万 月供2880元,20年(仅供参考)
2房2厅1卫
高楼层/共34楼
65㎡
毛坯
东北
2017年建
住宅
所在区域
斗门
房源编号
1367224
更新日期
2025-04-01
OKHOME承诺真实房源,
虚假举报
有奖
加入对比
约车看房
联系客服
基本信息
房源描述
房源点评
房源照片
小区信息
地理位置
加入对比
约车看房
相关经纪人
基本信息
基本属性
区域
斗门
片区
白蕉
小区
华发峰尚
产权
楼层
高楼层/共34楼
电梯
有
状态
全新未住
税费
满2年
装修
毛坯
朝向
东北
空间结构
平层
楼龄
2017年
家具
无
家电
无
地板
水泥地
景观
园景
小学
博雅小学
中学
博雅中学(文园集团)
税费参考
承担卖房税费
约 5500 元
承担买房税费
买房税费主要包括:契税:(1%、1.5%、2%、3%)首套或二套<90㎡按1%,首套>90㎡按1.5%,二套>90㎡按2%,第三套起及非住宅按3%
楼层保密说明
按照总层高/3,分为低楼层、中楼层、高楼层,共三个段
* 以上基本属性和交易属性信息仅供参考,购房时以房产证/不动产证信息为准
房源卖点
卖点一
1.稀缺户型,2房2厅一卫;
卖点二
2.小户型投资率汇报率高;
卖点三
3.珠海龙头开发商,华发品牌;
卖点四
4.华发物业管理,国家一级物业;
卖点五
5.上学方便,春天里的幼儿园,东湖小学;
相关经纪人
赖然
时代倾城分行
粤语
资深经纪人
高端物业
有车
我的微信
扫一扫添加微信
扫码拨号
19865954885
曾群
魅力之城二行
资深经纪人
学区房
高端物业
有车
我的微信
扫一扫添加微信
扫码拨号
13612214832
周龙生
魅力之城二行
资深经纪人
学区房
高端物业
别墅
我的微信
扫一扫添加微信
扫码拨号
13422456147
张进香
魅力之城二行
中高档公寓
商铺
写字楼
有车
我的微信
扫一扫添加微信
扫码拨号
13536586936
房源图片
查看全部
房贷计算器
房屋总价
55.00
贷款成数
2成
3成
4成
5成
6成
7成
8成
8.5成
贷款类别
商业贷款
公积金贷款
组合贷款
贷款年限
30年(360期)
29年(348期)
28年(336期)
27年(324期)
26年(312期)
25年(300期)
24年(288期)
23年(276期)
22年(264期)
21年(252期)
20年(240期)
19年(228期)
18年(216期)
17年(204期)
16年(192期)
15年(180期)
14年(168期)
13年(156期)
12年(144期)
11年(132期)
10年(120期)
9年(108期)
8年(96期)
7年(84期)
6年(72期)
5年(60期)
4年(48期)
3年(36期)
2年(24期)
1年(12期)
商贷贷款额
商贷利率
首套3.00
二套3.00
公积金贷款额
公积金利率
参考利率2.85
参考利率3.325
立即计算
等额本息还款
等额本金还款
首付
万
贷款总额
万
月供
元
总利息
万
本息总额
万
首付
万
贷款总额
万
月供
元
每月递减
元
总利息
万
本息总额
万
注:本次计算仅作为购房参考,结合实际情况了解更精确首付、贷款方案,建议咨询专业顾问
首付和贷款情况咨询
地理位置
交通
教育
医疗
购物
生活
娱乐
公交站
地铁站
小区信息
查看更多 >
华发峰尚
小区地址
斗门区白蕉镇禾生二路68号
建造年代
2017
小区物业
珠海华发物业管理有限公司
开 发 商
珠海市浩丰贸易有限公司
管 理 费
2.9 元/平米*月
在售 228 套
在租 27 套
查看全部
历史成交
查看更多 >
同类型二手房
查看全部
同类型租房
查看全部
预车看房
预约提交成功我们有专人与您取得联系
预约日期
随时
星期二
1
星期三
2
星期四
3
星期五
4
星期六
5
星期日
6
星期一
7
您的称呼
先生
女士
手机号码
短信验证码
获取验证码
输入识别码
其他要求
提交预约
相关经纪人
选择相关经纪人进行咨询联系
赖然
时代倾城分行
粤语
资深经纪人
高端物业
有车
我的微信
扫一扫添加微信
扫码拨号
19865954885
曾群
魅力之城二行
资深经纪人
学区房
高端物业
有车
我的微信
扫一扫添加微信
扫码拨号
13612214832
周龙生
魅力之城二行
资深经纪人
学区房
高端物业
别墅
我的微信
扫一扫添加微信
扫码拨号
13422456147
张进香
魅力之城二行
中高档公寓
商铺
写字楼
有车
我的微信
扫一扫添加微信
扫码拨号
13536586936
手机登陆
密码登陆
立即登陆
立即登陆
虚假举报
房源ID(1367224)
您的称呼
手机号码
补充描述
验证码:
提 交
【房源】虚假举报属实,奖励 100 元。
【房评】虚假举报属实,奖励 50 元。
在线委托
房源对比
咨询客服QQ
联系客服
474738599
400-168-0808
咨询客服电话
09:30 - 18:30
周一至周六
微信公众号
随时随地关注珠海楼市
微信小程序
正顺好房官方小程序
官方APP
扫描下载正顺好房网APP
专家答疑
在线留言
返回顶部
在线留言
感谢您一直以来对正顺好房网的关注和支持,如果您在使用过程中遇到问题或意见建议请留言反馈给我们,谢谢!
如需我们跟您联系或答复的话,请您留下联系方式。
姓名
电话
E-mail
*
反馈内容
验证码
提交反馈
房源对比
修改
取消
新 房
二手房
租 房