首页
新房
二手房
租房
小区
资讯
在线委托
关于我们
二手房
地图找房
空中看房
下载正顺好房APP
下载正顺好房APP
好房好生活OKHOME
近拱北关口,交通便利,单价低,拎包入住。满五唯一
高使用率
东南靓向
全新装修
拎包入住
收藏
分享
分享房源
扫一扫推荐给朋友
您的位置:
正顺好房网
>
二手房
>
详情页
提示:您的浏览器不支持视频播放,请升级浏览器》》
VR看房
视频看房
客厅
客厅
客厅
客厅
次卧
厨房
主卧
次卧
主卧
卫生间
厨房
卫生间
阳台
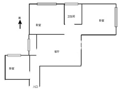
户型图
现代广场
100.0
万
12321元/㎡
首付15万 贷款85万 月供3816元,30年(仅供参考)
3房1厅1卫
低楼层/共17楼
81㎡
精装
东南
2000年建
住宅
所在区域
夏湾
房源编号
1296888
更新日期
2025-07-15
OKHOME承诺真实房源,
虚假举报
有奖
加入对比
约车看房
联系客服
基本信息
房源描述
房源点评
房源照片
小区信息
地理位置
加入对比
约车看房
相关经纪人
基本信息
基本属性
区域
夏湾
片区
港昌南
小区
现代广场
产权
商品房
楼层
低楼层/共17楼
电梯
有
状态
已使用
税费
满五唯一
装修
精装
朝向
东南
空间结构
平层
楼龄
2000年
家具
全齐
家电
全齐
地板
磁砖
景观
无景
小学
侨光小学
中学
夏湾中学
税费参考
承担卖房税费
约 10000 元
承担买房税费
买房税费主要包括:契税:(1%、1.5%、2%、3%)首套或二套<140㎡按1%,首套>140㎡按1.5%,二套>140㎡按2%,第三套起及非住宅按3%
楼层保密说明
按照总层高/3,分为低楼层、中楼层、高楼层,共三个段
* 以上基本属性和交易属性信息仅供参考,购房时以房产证/不动产证信息为准
房源卖点
卖点一
卖点二
卖点三
1,地段好,靠近拱北口岸,升值空间大
卖点四
2,上下楼超级方便
卖点五
3,精装修,可以拎包入住
卖点六
4,低于市场价出售
卖点七
5,侨光小学,夏湾中学学区房
卖点八
相关经纪人
陈伟2
北欧森林一行
资深经纪人
高端物业
学区房
别墅
我的微信
扫一扫添加微信
扫码拨号
13825670810
刘昌利
北欧森林一行
中高档公寓
高端物业
别墅
写字楼
我的微信
扫一扫添加微信
扫码拨号
13825652613
房源图片
查看全部
房贷计算器
房屋总价
100.00
贷款成数
2成
3成
4成
5成
6成
7成
8成
8.5成
贷款类别
商业贷款
公积金贷款
组合贷款
贷款年限
30年(360期)
29年(348期)
28年(336期)
27年(324期)
26年(312期)
25年(300期)
24年(288期)
23年(276期)
22年(264期)
21年(252期)
20年(240期)
19年(228期)
18年(216期)
17年(204期)
16年(192期)
15年(180期)
14年(168期)
13年(156期)
12年(144期)
11年(132期)
10年(120期)
9年(108期)
8年(96期)
7年(84期)
6年(72期)
5年(60期)
4年(48期)
3年(36期)
2年(24期)
1年(12期)
商贷贷款额
商贷利率
首套3.00
二套3.00
公积金贷款额
公积金利率
参考利率2.85
参考利率3.325
立即计算
等额本息还款
等额本金还款
首付
万
贷款总额
万
月供
元
总利息
万
本息总额
万
首付
万
贷款总额
万
月供
元
每月递减
元
总利息
万
本息总额
万
注:本次计算仅作为购房参考,结合实际情况了解更精确首付、贷款方案,建议咨询专业顾问
首付和贷款情况咨询
航拍信息
全屏观看
地理位置
交通
教育
医疗
购物
生活
娱乐
公交站
地铁站
小区信息
查看更多 >
现代广场
小区地址
香洲区夏湾港昌路11
建造年代
2000
小区物业
开 发 商
管 理 费
1.2 元/平米*月
在售 1 套
在租 1 套
同类型二手房
查看全部
同类型租房
查看全部
预车看房
预约提交成功我们有专人与您取得联系
预约日期
随时
星期二
15
星期三
16
星期四
17
星期五
18
星期六
19
星期日
20
星期一
21
您的称呼
先生
女士
手机号码
短信验证码
获取验证码
输入识别码
其他要求
提交预约
相关经纪人
选择相关经纪人进行咨询联系
陈伟2
北欧森林一行
资深经纪人
高端物业
学区房
别墅
我的微信
扫一扫添加微信
扫码拨号
13825670810
刘昌利
北欧森林一行
中高档公寓
高端物业
别墅
写字楼
我的微信
扫一扫添加微信
扫码拨号
13825652613
手机登陆
密码登陆
立即登陆
立即登陆
虚假举报
房源ID(1296888)
您的称呼
手机号码
补充描述
验证码:
提 交
【房源】虚假举报属实,奖励 100 元。
【房评】虚假举报属实,奖励 50 元。
在线委托
房源对比
咨询客服QQ
联系客服
474738599
400-168-0808
咨询客服电话
09:30 - 18:30
周一至周六
微信公众号
随时随地关注珠海楼市
微信小程序
正顺好房官方小程序
官方APP
扫描下载正顺好房网APP
专家答疑
在线留言
返回顶部
在线留言
感谢您一直以来对正顺好房网的关注和支持,如果您在使用过程中遇到问题或意见建议请留言反馈给我们,谢谢!
如需我们跟您联系或答复的话,请您留下联系方式。
姓名
电话
E-mail
*
反馈内容
验证码
提交反馈
房源对比
修改
取消
新 房
二手房
租 房