首页
新房
二手房
租房
小区
资讯
在线委托
关于我们
二手房
地图找房
空中看房
下载正顺好房APP
下载正顺好房APP
好房好生活OKHOME
金湾航空新城,珠光新城 ,110平南向三房可改四房,适合刚需一族
园林景
视野开阔
格局方正
交通便利
收藏
分享
分享房源
扫一扫推荐给朋友
您的位置:
正顺好房网
>
二手房
>
详情页
提示:您的浏览器不支持视频播放,请升级浏览器》》
VR看房
视频看房
客厅
客厅
客厅
厨房
小阳台
次卧
卫生间
卫生间
儿童房
次卧
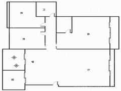
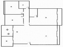
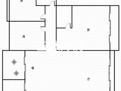
户型图
户型图
珠光新城
100.0
万
9132元/㎡
首付20万 贷款80万 月供5236元,20年(仅供参考)
3房2厅1卫
高楼层/共6楼
110㎡
精装
南
2010年建
住宅
所在区域
金湾
房源编号
1221581
更新日期
2025-02-09
OKHOME承诺真实房源,
虚假举报
有奖
加入对比
约车看房
联系客服
基本信息
房源描述
房源点评
房源照片
小区信息
地理位置
加入对比
约车看房
相关经纪人
基本信息
基本属性
区域
金湾
片区
红旗
小区
珠光新城 一期
产权
楼层
高楼层/共6楼
电梯
无
状态
全新未住
税费
满2年
装修
精装
朝向
南
空间结构
平层
楼龄
2010年
家具
无
家电
无
地板
磁砖
景观
园景
小学
金湾一小
中学
红旗中学
税费参考
承担卖房税费
约 10000 元
承担买房税费
买房税费主要包括:契税:(1%、1.5%、2%、3%)首套或二套<90㎡按1%,首套>90㎡按1.5%,二套>90㎡按2%,第三套起及非住宅按3%
楼层保密说明
按照总层高/3,分为低楼层、中楼层、高楼层,共三个段
* 以上基本属性和交易属性信息仅供参考,购房时以房产证/不动产证信息为准
房源卖点
卖点一
金湾区大型花园小区,西班牙风情建筑,地处珠海航空新城地带,未来升值前景乐观,110㎡,纯毛坯,可改4房,适合刚需一族,
相关经纪人
张礼友
心海洲分行
资深经纪人
高端物业
别墅
懂风水
我的微信
扫一扫添加微信
扫码拨号
15819426759
柳涛
西江月一行
中高档公寓
高端物业
别墅
写字楼
我的微信
扫一扫添加微信
扫码拨号
18218930345
房源房评
梁清娥
湖城大境分行
本人梁清娥,电话:13928073587,是房产客户经理,精跟金湾大区,熟悉金
湾一手二手房,看房专车接送,本人亲自勘察过房源,觉得有以下卖点:
1. 珠光新城是红旗中心位置,小区管理完善还很严谨。
2.附近就是红旗中心广场,益百家购物商场,广安便民市场,全民健身广场。
3.小学中学有金湾一小和红旗中学。
4.房子采光好,格局方正
房源图片
查看全部
房贷计算器
房屋总价
100.00
贷款成数
2成
3成
4成
5成
6成
7成
8成
8.5成
贷款类别
商业贷款
公积金贷款
组合贷款
贷款年限
30年(360期)
29年(348期)
28年(336期)
27年(324期)
26年(312期)
25年(300期)
24年(288期)
23年(276期)
22年(264期)
21年(252期)
20年(240期)
19年(228期)
18年(216期)
17年(204期)
16年(192期)
15年(180期)
14年(168期)
13年(156期)
12年(144期)
11年(132期)
10年(120期)
9年(108期)
8年(96期)
7年(84期)
6年(72期)
5年(60期)
4年(48期)
3年(36期)
2年(24期)
1年(12期)
商贷贷款额
商贷利率
首套3.00
二套3.00
公积金贷款额
公积金利率
参考利率2.85
参考利率3.325
立即计算
等额本息还款
等额本金还款
首付
万
贷款总额
万
月供
元
总利息
万
本息总额
万
首付
万
贷款总额
万
月供
元
每月递减
元
总利息
万
本息总额
万
注:本次计算仅作为购房参考,结合实际情况了解更精确首付、贷款方案,建议咨询专业顾问
首付和贷款情况咨询
航拍信息
全屏观看
地理位置
交通
教育
医疗
购物
生活
娱乐
公交站
地铁站
小区信息
查看更多 >
珠光新城 一期
小区地址
金湾区红旗镇成行路288号、成行路277号
建造年代
2010
小区物业
珠光物业
开 发 商
珠海市成泰置业有限公司
管 理 费
1.5 元/平米*月
在售 81 套
在租 23 套
查看全部
历史成交
查看更多 >
同类型二手房
查看全部
同类型租房
查看全部
预车看房
预约提交成功我们有专人与您取得联系
预约日期
随时
星期日
9
星期一
10
星期二
11
星期三
12
星期四
13
星期五
14
星期六
15
您的称呼
先生
女士
手机号码
短信验证码
获取验证码
输入识别码
其他要求
提交预约
相关经纪人
选择相关经纪人进行咨询联系
张礼友
心海洲分行
资深经纪人
高端物业
别墅
懂风水
我的微信
扫一扫添加微信
扫码拨号
15819426759
柳涛
西江月一行
中高档公寓
高端物业
别墅
写字楼
我的微信
扫一扫添加微信
扫码拨号
18218930345
手机登陆
密码登陆
立即登陆
立即登陆
虚假举报
房源ID(1221581)
您的称呼
手机号码
补充描述
验证码:
提 交
【房源】虚假举报属实,奖励 100 元。
【房评】虚假举报属实,奖励 50 元。
在线委托
房源对比
咨询客服QQ
联系客服
474738599
400-168-0808
咨询客服电话
09:30 - 18:30
周一至周六
微信公众号
随时随地关注珠海楼市
微信小程序
正顺好房官方小程序
官方APP
扫描下载正顺好房网APP
专家答疑
在线留言
返回顶部
在线留言
感谢您一直以来对正顺好房网的关注和支持,如果您在使用过程中遇到问题或意见建议请留言反馈给我们,谢谢!
如需我们跟您联系或答复的话,请您留下联系方式。
姓名
电话
E-mail
*
反馈内容
验证码
提交反馈
房源对比
修改
取消
新 房
二手房
租 房