首页
新房
二手房
租房
小区
资讯
经纪人
在线委托
关于我们
二手房
地图找房
空中看房
下载正顺好房APP
下载正顺好房APP
好房好生活OKHOME
诚意出售拱北关口旁 粤海国际花园 精装4房2厅 142平 可拎包入住赠送家私家电
采光充足
豪华装修
配套成熟
老城旺地
收藏
分享
分享房源
扫一扫推荐给朋友
您的位置:
正顺好房网
>
二手房
>
详情页
提示:您的浏览器不支持视频播放,请升级浏览器》》
VR看房
视频看房
客厅
客厅
客厅
客厅
客厅
客厅
客厅
客厅
客厅
客厅
客厅
次卧
次卧
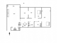
户型图
346.0
万
24494元/㎡
首付104万 贷款242万 月供15852元,20年(仅供参考)
4房3厅2卫
低楼层/共11楼
141㎡
高档
南北通
2002年建
住宅
小区名称
粤海国际花园
所在区域
拱北
房源编号
1113801
更新日期
2023-01-09
OKHOME承诺真实房源,
虚假举报
有奖
加入对比
约车看房
联系客服
基本信息
房源描述
房源点评
房源照片
小区信息
地理位置
加入对比
约车看房
相关经纪人
基本信息
基本属性
区域
拱北
片区
拱北口岸
小区
粤海国际花园
产权
商品房
楼层
低楼层/共11楼
电梯
有
装修
高档
朝向
南北通
空间结构
跃式
楼龄
2002年
家具
全齐
家电
全齐
地板
磁砖
景观
街景
小学
夏湾小学
中学
夏湾中学
税费参考
承担卖房税费
约 10000 元
承担买房税费
买房税费主要包括:契税:(1%、1.5%、2%、3%)首套或二套<90㎡按1%,首套>90㎡按1.5%,二套>90㎡按2%,第三套起及非住宅按3%
楼层保密说明
按照总层高/3,分为低楼层、中楼层、高楼层,共三个段
* 以上基本属性和交易属性信息仅供参考,购房时以房产证/不动产证信息为准
房源描述
房子独有的特点:
此房源位于拱北口岸附近、轻轨站旁、
卖点;
1.步行2分钟即到青茂口岸、小区前面就是公交总站、出门就是轻轨站,黄金地段,升值在望。
2.格局方正,面积实用 、房子业主保养的非常好、非常干净舒适、采光非常好的。赠送家私家电,价格可以商议
3.华策物业,管理严格,人生安全有保障
相关经纪人
段波
山湖海会所一行
中高档公寓
高端物业
别墅
学区房
我的微信
扫一扫添加微信
扫码拨号
13825655921
徐利军
华宁花园一行
懂风水
普通话
资深经纪人
高端物业
我的微信
扫一扫添加微信
扫码拨号
15089171332
房源图片
查看全部
房贷计算器
房屋总价
346.00
贷款成数
2成
3成
4成
5成
6成
7成
8成
贷款类别
商业贷款
公积金贷款
组合贷款
贷款年限
30年(360期)
29年(348期)
28年(336期)
27年(324期)
26年(312期)
25年(300期)
24年(288期)
23年(276期)
22年(264期)
21年(252期)
20年(240期)
19年(228期)
18年(216期)
17年(204期)
16年(192期)
15年(180期)
14年(168期)
13年(156期)
12年(144期)
11年(132期)
10年(120期)
9年(108期)
8年(96期)
7年(84期)
6年(72期)
5年(60期)
4年(48期)
3年(36期)
2年(24期)
1年(12期)
商贷贷款额
商贷利率
首套3.45
首套3.60
二套4.80
公积金贷款额
公积金利率
参考利率3.1
立即计算
等额本息还款
等额本金还款
首付
万
贷款总额
万
月供
元
总利息
万
本息总额
万
首付
万
贷款总额
万
月供
元
每月递减
元
总利息
万
本息总额
万
注:本次计算仅作为购房参考,结合实际情况了解更精确首付、贷款方案,建议咨询专业顾问
首付和贷款情况咨询
航拍信息
全屏观看
地理位置
交通
教育
医疗
购物
生活
娱乐
公交站
地铁站
小区信息
查看更多 >
粤海国际花园
小区地址
香洲区拱北国防路1
建造年代
2002
小区物业
华策物业
开 发 商
朝粤房地产有限公
管 理 费
2.2 元/平米*月
在售 48 套
在租 5 套
查看全部
历史成交
查看更多 >
同类型二手房
查看全部
同类型租房
查看全部
预车看房
预约提交成功我们有专人与您取得联系
预约日期
随时
星期四
21
星期五
22
星期六
23
星期日
24
星期一
25
星期二
26
星期三
27
您的称呼
先生
女士
手机号码
短信验证码
获取验证码
输入识别码
其他要求
提交预约
相关经纪人
选择相关经纪人进行咨询联系
段波
山湖海会所一行
中高档公寓
高端物业
别墅
学区房
我的微信
扫一扫添加微信
扫码拨号
13825655921
徐利军
华宁花园一行
懂风水
普通话
资深经纪人
高端物业
我的微信
扫一扫添加微信
扫码拨号
15089171332
手机登陆
密码登陆
立即登陆
立即登陆
虚假举报
房源ID(1113801)
您的称呼
手机号码
补充描述
验证码:
提 交
【房源】虚假举报属实,奖励 100 元。
【房评】虚假举报属实,奖励 50 元。
在线委托
房源对比
咨询客服QQ
联系客服
474738599
400-168-0808
咨询客服电话
09:30 - 18:30
周一至周六
微信公众号
随时随地关注珠海楼市
微信小程序
正顺好房官方小程序
官方APP
扫描下载正顺好房网APP
专家答疑
在线留言
返回顶部
在线留言
感谢您一直以来对正顺好房网的关注和支持,如果您在使用过程中遇到问题或意见建议请留言反馈给我们,谢谢!
如需我们跟您联系或答复的话,请您留下联系方式。
姓名
电话
E-mail
*
反馈内容
验证码
提交反馈
房源对比
修改
取消
新 房
二手房
租 房