首页
新房
二手房
租房
工商铺
小区
资讯
在线委托
关于我们
二手房
地图找房
空中看房
下载正顺好房APP
下载正顺好房APP
好房好生活OKHOME
老香洲 桃李家园 电梯精装2房1厅
空气清新
采光充足
清爽简装
生活便利
收藏
分享
分享房源
扫一扫推荐给朋友
您的位置:
正顺好房网
>
二手房
>
详情页
提示:您的浏览器不支持视频播放,请升级浏览器》》
VR看房
视频看房
客厅
客厅
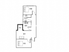
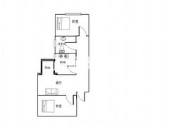
户型图
客厅
客厅
客厅
客厅
客厅
客厅
客厅
桃李家园
200.0
万
35106元/㎡
首付30万 贷款170万 月供7633元,30年(仅供参考)
2房1厅1卫
低楼层/共15楼
57㎡
精装
南
2008年建
住宅
所在区域
老香洲
房源编号
1078857
更新日期
2026-04-28
OKHOME承诺真实房源,
虚假举报
有奖
加入对比
约车看房
联系客服
基本信息
房源描述
房源点评
房源照片
小区信息
地理位置
加入对比
约车看房
推荐经纪人
基本信息
基本属性
区域
老香洲
片区
凤凰北
小区
桃李家园
产权
商品房
楼层
低楼层/共15楼
电梯
有
状态
已使用
税费
满2年
装修
精装
朝向
南
空间结构
平层
楼龄
2008年
家具
全齐
家电
全齐
地板
磁砖
景观
无景
小学
三小
中学
市七中
税费参考
承担卖房税费
约 20000 元
承担买房税费
买房税费主要包括:契税:(1%、1.5%、2%、3%)首套或二套<140㎡按1%,首套>140㎡按1.5%,二套>140㎡按2%,第三套起及非住宅按3%
楼层保密说明
按照总层高/3,分为低楼层、中楼层、高楼层,共三个段
* 以上基本属性和交易属性信息仅供参考,购房时以房产证/不动产证信息为准
房源卖点
卖点一
1.房子通风采光非常好,朝南。
卖点二
2.地段好,周围配套成熟交通便利
卖点三
3.邮局 医院 银行 小区内有商铺
卖点四
4.附近有凤凰市场,华润万家.扬名广场洲最好的地段。标准的2房1厅公寓。
推荐经纪人
陈成松
凤凰花园三分行
中高档公寓
高端物业
别墅
写字楼
4000781128 转 1754
我的微信
扫一扫添加微信
房源房评
陈成松
凤凰花园三分行
【户型优势】户型实用,格局方正,电梯中间楼层,采光好。
【学区优势】学区不占用。
【交通优势】楼下就是巴士站,
【车位优势】车位充足,满意停车
【房源优势】,对面就学校,房子不潮湿,采光 阳光充足,读书陪读方便,节省时间!
【个人总结】本人亲自看过此房,小区管理完善,户型实用。
【为什么选择我】本人从事地产行业已多年有余,对周边小区、户型非常熟悉。用心服务,诚信待人!欢迎随时来电!135-430-34651 陈成松 本人亲自看过现在,房子装修保养好!
黄田旺
丹田一小分行
本人黄田旺是专业地产从业人人员,实地看过此房,该房非常熟悉,如需要了解更多详细信息,请电咨询:15811685953(微信同号) 房源真实有效出租,现场实拍照片。户型优势 :2房2厅1卫 朝南 家私:部分家具 学区优势 : 三小 7中学 交通优势:附近公交站,出行无阻。配套优势:小区位处老香洲旺地,周边配套完善, 和各大银行,附近有巴士站,交通生活方便。大银行均在附近。去海边,日月贝,野狸岛12分钟 个人总结:周边配套齐全,生活和交通都很方便。
房源图片
查看全部
房贷计算器
房屋总价
200.00
贷款成数
2成
3成
4成
5成
6成
7成
8成
8.5成
贷款类别
商业贷款
公积金贷款
组合贷款
贷款年限
30年(360期)
29年(348期)
28年(336期)
27年(324期)
26年(312期)
25年(300期)
24年(288期)
23年(276期)
22年(264期)
21年(252期)
20年(240期)
19年(228期)
18年(216期)
17年(204期)
16年(192期)
15年(180期)
14年(168期)
13年(156期)
12年(144期)
11年(132期)
10年(120期)
9年(108期)
8年(96期)
7年(84期)
6年(72期)
5年(60期)
4年(48期)
3年(36期)
2年(24期)
1年(12期)
商贷贷款额
商贷利率
首套3.00
二套3.00
公积金贷款额
公积金利率
参考利率2.85
参考利率3.325
立即计算
等额本息还款
等额本金还款
首付
万
贷款总额
万
月供
元
总利息
万
本息总额
万
首付
万
贷款总额
万
月供
元
每月递减
元
总利息
万
本息总额
万
注:本次计算仅作为购房参考,结合实际情况了解更精确首付、贷款方案,建议咨询专业顾问
首付和贷款情况咨询
航拍信息
全屏观看
地理位置
交通
教育
医疗
购物
生活
娱乐
公交站
地铁站
小区信息
查看小区 >
桃李家园
小区地址
香洲区松林街2号10栋
建造年代
2008
小区物业
开 发 商
管 理 费
2.7 元/平米*月
在售 31 套
在租 15 套
查看全部
历史成交
查看更多 >
同类型二手房
查看全部
同类型租房
查看全部
预车看房
预约提交成功我们有专人与您取得联系
预约日期
随时
星期二
28
星期三
29
星期四
30
星期五
1
星期六
2
星期日
3
星期一
4
您的称呼
先生
女士
手机号码
输入识别码
短信验证码
获取验证码
其他要求
提交预约
推荐经纪人
选择推荐经纪人进行咨询联系
陈成松
凤凰花园三分行
中高档公寓
高端物业
别墅
写字楼
我的微信
扫一扫添加微信
扫码拨号
13543034651
手机登陆
密码登陆
立即登陆
立即登陆
虚假举报
房源ID(1078857)
您的称呼
手机号码
补充描述
验证码:
提 交
【房源】虚假举报属实,奖励 100 元。
【房评】虚假举报属实,奖励 50 元。
在线委托
房源对比
咨询客服QQ
联系客服
474738599
400-168-0808
咨询客服电话
09:30 - 18:30
周一至周六
微信公众号
随时随地关注珠海楼市
微信小程序
正顺好房官方小程序
官方APP
扫描下载正顺好房网APP
专家答疑
在线留言
返回顶部
在线留言
感谢您一直以来对正顺好房网的关注和支持,如果您在使用过程中遇到问题或意见建议请留言反馈给我们,谢谢!
如需我们跟您联系或答复的话,请您留下联系方式。
姓名
电话
E-mail
*
反馈内容
验证码
提交反馈
房源对比
修改
取消
新 房
二手房
租 房