首页
新房
二手房
租房
小区
资讯
在线委托
关于我们
二手房
地图找房
空中看房
下载正顺好房APP
下载正顺好房APP
好房好生活OKHOME
白蕉新城 海逸豪庭 精装3房 装修保养好 业主急售价格78万出手此房
园林景
空气清新
格局方正
采光充足
收藏
分享
分享房源
扫一扫推荐给朋友
您的位置:
正顺好房网
>
二手房
>
详情页
提示:您的浏览器不支持视频播放,请升级浏览器》》
VR看房
视频看房
客厅
客厅
主卧
次卧
儿童房
厨房
餐厅
卫生间
阳台
小阳台
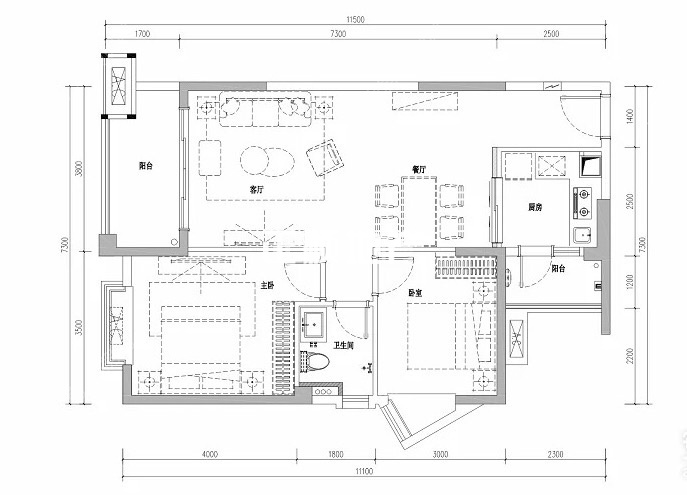
户型图
海逸豪庭
80.0
万
9091元/㎡
首付16万 贷款64万 月供4189元,20年(仅供参考)
3房2厅2卫
高楼层/共11楼
88㎡
精装
南
2007年建
住宅
所在区域
斗门
房源编号
1039924
更新日期
2024-01-16
OKHOME承诺真实房源,
虚假举报
有奖
加入对比
约车看房
联系客服
基本信息
房源描述
房源点评
房源照片
小区信息
地理位置
加入对比
约车看房
相关经纪人
基本信息
基本属性
区域
斗门
片区
白蕉
小区
海逸豪庭
产权
商品房
楼层
高楼层/共11楼
电梯
有
状态
全新未住
税费
满2年
装修
精装
朝向
南
空间结构
平层
楼龄
2007年
家具
全齐
家电
全齐
地板
木地板
景观
园景
小学
成裕围小学
中学
城东中学
税费参考
承担卖房税费
约 8000 元
承担买房税费
买房税费主要包括:契税:(1%、1.5%、2%、3%)首套或二套<90㎡按1%,首套>90㎡按1.5%,二套>90㎡按2%,第三套起及非住宅按3%
楼层保密说明
按照总层高/3,分为低楼层、中楼层、高楼层,共三个段
* 以上基本属性和交易属性信息仅供参考,购房时以房产证/不动产证信息为准
房源描述
房子独有的特点:
周边有美景市场,喜来客超市!教育环境好!有中心幼儿园,中心小学,华师附中等名校!翡翠皇家KTV、维也纳酒店、美食:金上豪大酒楼、海逸酒店等,环境优美舒适,空气清新,治安管理好。周边公共设施齐全,交通方便,周边拥有商业配套及教育配套齐全,升值空间大。
相关经纪人
杨莉莉
时代倾城二行
我的微信
扫一扫添加微信
扫码拨号
13923360446
熊丽丽
魅力之城一行
学区房
商铺
资深经纪人
有车
我的微信
扫一扫添加微信
扫码拨号
13726278338
房源图片
查看全部
房贷计算器
房屋总价
80.00
贷款成数
2成
3成
4成
5成
6成
7成
8成
贷款类别
商业贷款
公积金贷款
组合贷款
贷款年限
30年(360期)
29年(348期)
28年(336期)
27年(324期)
26年(312期)
25年(300期)
24年(288期)
23年(276期)
22年(264期)
21年(252期)
20年(240期)
19年(228期)
18年(216期)
17年(204期)
16年(192期)
15年(180期)
14年(168期)
13年(156期)
12年(144期)
11年(132期)
10年(120期)
9年(108期)
8年(96期)
7年(84期)
6年(72期)
5年(60期)
4年(48期)
3年(36期)
2年(24期)
1年(12期)
商贷贷款额
商贷利率
首套3.45
首套3.60
二套4.40
公积金贷款额
公积金利率
参考利率3.1
立即计算
等额本息还款
等额本金还款
首付
万
贷款总额
万
月供
元
总利息
万
本息总额
万
首付
万
贷款总额
万
月供
元
每月递减
元
总利息
万
本息总额
万
注:本次计算仅作为购房参考,结合实际情况了解更精确首付、贷款方案,建议咨询专业顾问
首付和贷款情况咨询
航拍信息
全屏观看
地理位置
交通
教育
医疗
购物
生活
娱乐
公交站
地铁站
小区信息
查看更多 >
海逸豪庭
小区地址
斗门区白蕉镇白蕉南路19号
建造年代
2007
小区物业
珠海市中港城物业管理有限公司
开 发 商
珠海市绿庭雅苑房地产开发有限公司
管 理 费
1.5 元/平米*月
在售 140 套
在租 28 套
查看全部
历史成交
查看更多 >
同类型二手房
查看全部
同类型租房
查看全部
预车看房
预约提交成功我们有专人与您取得联系
预约日期
随时
星期六
27
星期日
28
星期一
29
星期二
30
星期三
31
星期四
1
星期五
2
您的称呼
先生
女士
手机号码
短信验证码
获取验证码
输入识别码
其他要求
提交预约
相关经纪人
选择相关经纪人进行咨询联系
杨莉莉
时代倾城二行
我的微信
扫一扫添加微信
扫码拨号
13923360446
熊丽丽
魅力之城一行
学区房
商铺
资深经纪人
有车
我的微信
扫一扫添加微信
扫码拨号
13726278338
手机登陆
密码登陆
立即登陆
立即登陆
虚假举报
房源ID(1039924)
您的称呼
手机号码
补充描述
验证码:
提 交
【房源】虚假举报属实,奖励 100 元。
【房评】虚假举报属实,奖励 50 元。
在线委托
房源对比
咨询客服QQ
联系客服
474738599
400-168-0808
咨询客服电话
09:30 - 18:30
周一至周六
微信公众号
随时随地关注珠海楼市
微信小程序
正顺好房官方小程序
官方APP
扫描下载正顺好房网APP
专家答疑
在线留言
返回顶部
在线留言
感谢您一直以来对正顺好房网的关注和支持,如果您在使用过程中遇到问题或意见建议请留言反馈给我们,谢谢!
如需我们跟您联系或答复的话,请您留下联系方式。
姓名
电话
E-mail
*
反馈内容
验证码
提交反馈
房源对比
修改
取消
新 房
二手房
租 房